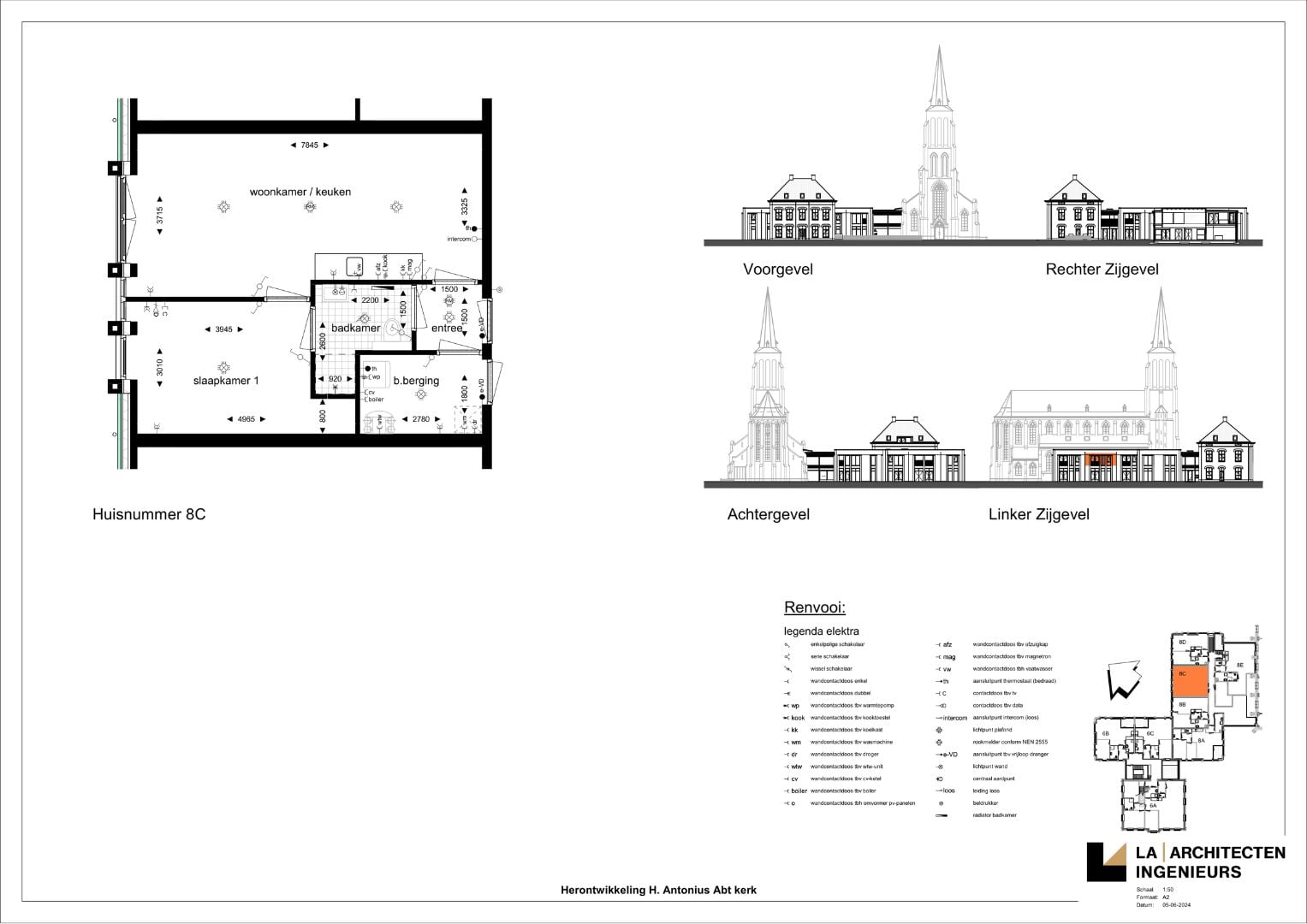
Verkocht: Esdonkstraat 8C
53 m2 - € 292.500
Kenmerken
Gelegen op de eerste verdieping van het nieuw te bouwen complex naast de kerk pastorie. De voorzijde van het gebouw krijgt een nieuwe versie van de oude pastorie. In de Kerk komen 3 bijzondere appartementen. Tussen de kerk en de pastorie bevinden zich 5 wat moderner vormgegeven appartementen op de eerste verdieping. Ontsloten via een trap en een lift.
De totale oppervlakte bedraagt 53 m2. Deze woning wordt uitgevoerd met een zogenaamd frans balkon, een slaapkamer en een inpandige berging. Efficiënt ingedeeld. Verder is er in de externe gemeenschappelijke fietsenberging met plaats voor 2 fietsen; behorende bij deze woning.
De woning krijgt Energielabel A +++, is gasloos, en is voorzien van een Warmte-terug-Win installatie, een warmtepomp en een elektrische boiler. Eigen zonnepanelen zijn optioneel; deze worden aangeboden als overkapping van de parkeerplaatsen (deze zijn te koop in combinatie met de onderliggende parkeerplaats). Er wordt dus een mogelijkheid geboden om een eigen parkeerplaats op een afgesloten terrein naast het appartementencomplex te kopen. Deze parkeerplaatsen zijn te koop met of zonder overkapping, zonnepanelen en laadpunt.
Voor het opleveringsniveau wordt verwezen naar de verkoopdocumentatie op deze site.
















